Die Baumaßnahme
Die Planungen und die erforderlichen Genehmigungen sind mittlerweile soweit fortgeschritten, dass wir im April 2016 nach dem beliebten Fest „Tracht meets Trend“ mit den Baumaßnahmen beginnen können.Der Bau ist ein großes Vorhaben, das wir aber gemeinsam sicher gut stemmen können. Mit dieser Investition wird unser Verein auch in Zukunft ein Mittelpunkt im Dorfleben bleiben können. Mit dem Gymnastikraum können wir neben Fußball und Theater in Zukunft das Angebot für Gesundheitssport, Gymnastik, Pilates, Tischtennis usw. für alle Altersgruppen erweitern. Den Bedarf sehen wir schon heute und oft wird es eng mit den Terminen im Saal.Während der Bauzeit werden wir mit einem Dusch-Container und einem Toilettenwagen den Spielbetrieb aufrecht erhalten. Auch das Vereinsheim kann, mit Einschränkungen, genutzt werden.
Wir bitten um eure aktive Mithilfe und tatkräftige Unterstützung . Unter Punkt "Bau mit!" findet ihr einen Bauzeitenplan (Was passiert wann) und Ansprechpartner wo ihr euch melden könnt.
Auch finanziell kommt auf den Verein einiges zu . Einen Überblick über den Stand der Spenden und Kontodaten fürs eigene Spenden findet ihr unter "Spenden".
Der Anbau in Zahlen, Daten und Fakten
Flächen:
| Überbaute Fläche: | 280 m2 |
|---|---|
| Umbauter Raum: | 1.957 m3 |
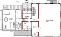
Im Erdgeschoß:
| Größere Küche: | 24m2 (jetzt 12 m2) |
|---|---|
| Größeres Damen WC: | 4 WC’s |
| Herren WC: | 2 WC’s / 4 Pissoirs |
| 4 x Umkleidekabinen | je ca. 20 m2 |
| 4 x Duschen | je ca. 6 m2 |
| 2 x Schiri-Kabinen | je ca. 7 m2 |
Im Obergeschoß:
| 1 x Gymnastikraum: | 158 m2 (zum Vergleich, der Saal hat 103 m2) |
|---|---|
| 1 x Großgerätelagerraum | 17 m2 |
| 2 x Universalraum | je 13 m2 |



